Princessiltä löytyy entuudestaan F-sarjan flybridge-veneitä, Y-sarjan moottorijahteja ja M-sarjan megajahteja. Silti Princessin mielestä mallistossa on tilaa vielä yhdelle sarjalle.
X-sarjan ensimmäinen malli on X95. Sen on määrä valmistua joskus loppukesästä eli lanseeraus voisi tapahtua vaikkapa Cannesin tai Monacon venemessuilla. Esimakua saadaan huolella tehdyistä mallikuvista.
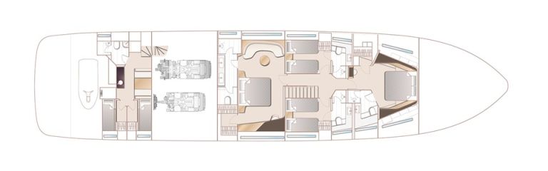
X-sarjan kuningasidea on maksimoida tilatarjonta. Se tehdään jakamalla tilat kolmeen kanteen, joista jokainen on venytetty mahdollisimman pitkiksi, lähes koko veneen mittaisiksi.
Ylin on nimetty flybridge-kanneksi. Siellä on valtava, irtokalustein sisutettu peräkansi sekä muhkealla u-sohvalla ja saarekeaurinkotasolla varustettu keulakansi. Niiden välissä on ilmastoitu kattohuoneisto, jonka etuosassa on komentosilta. Kerrosta alemmas pääsee sekä peräkannella että kattohuoneistossa olevista portaikoista.
Myös keskikerroksessa on oleskelutilaa liki koko veneen pituudelta, mutta nyt se on u-sohvalla varustettua taka-avotilaa lukuun ottamatta katettua sisätilaa. Kansisalonki on hulppean kokoinen, ja varustettu päivätoiletilla. Keula on varattu kahdeksan hengen ruokailutilalle, baaritiskille ja pentterille. Vaihtoehtona keulaan saa sviitin, jolloin kansisalonki pienenee pentterin ja ruokailutilan sijoittuessa makuukajuutan tieltä taaemmas.
Alakannelta löytyy neljä makuukajuuttaa, joista takimmainen keskiveneen lukaali on tilavin ja ylellisin päämakuukajuutta. Siellä on esimerkiksi vaatehuone, reilun kokoinen sohva, meikkauspöytä ja kahdella pesualtaalla varustettu kylpyhuone.
Keulakajuutta on mitoitettu vipvieraskajuutaksi, ja sielläkin on vaatehuone ja meikkipöytä, tosin pienemmät kuin masterissa. Kaksi jäljelle jäävää makuukajuuttaa ovat tiloiltaan ja varusteiltaan identtiset.
Miehistötilat ovat perässä konehuoneen ja vesijettitallin välissä ja sisältävät kaksi makuukajuuttaa, messin ja kylpyhuoneen. Kerrostalomainen olemus ei ole estänyt Princessiä varustamasta X95:sta kahdella 1 900-hevosvoimaisella MANin 12-sylinterisellä dieselillä, joilla 100 tonnin jahdille lupaillaan 24–26 solmun huippunopeutta. Polttoaineenkulutus on varmasti infernaalista, mutta yli 13 000 litran tilavuus pitää huolen siitä ettei tankki kuivu ihan hetkessä.





